












Disponible
Propriété 4DK Iizuna-machi Préfecture de Nagano
Chargement...
Total estimé (frais inclus): $75,232
9 vues
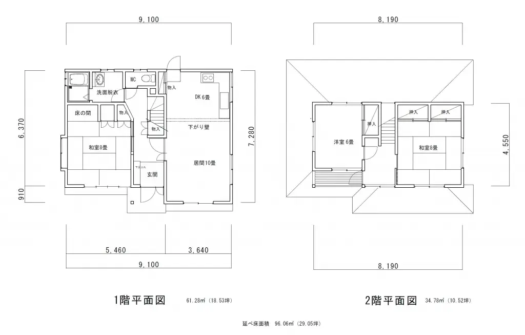
Cette maison individuelle en bois de 4DK, construite en 1990, est située à Toyono, Iizuna-machi, Kamiminochi-gun, préfecture de Nagano. Elle offre une surface habitable substantielle de 96,05 mètres carrés et un grand terrain de 458,58 mètres carrés. Cela offre un potentiel important pour une vie co...
Caractéristiques
ANNÉE DE CONSTRUCTION
1990
Chambres
4
STRUCTURE
木造
SURFACE HABITABLE
96.05 m²
SURFACE DU TERRAIN
458.58 m²
RÉGIME FONCIER
Propriété pleine
ZONAGE
Résidentiel
ÉTAGE
2
PARKING
—
POTENTIEL MINPAKU
Incertain
Gare la plus proche
Aéroport
Onsen / Source chaude
Supermarché
Épicerie de proximité
Hôpital / Clinique
Plan

Source :Voir l'annonce d'origine
Chargement...
Total estimé (frais inclus): $75,232
9 vues
Disponible
...
