

Disponible
Préfecture de Fukui Ville de Fukui 10DK Propriété
Chargement...
20 vues
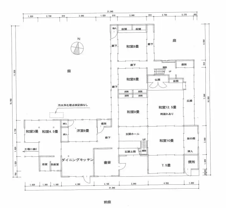
Cette propriété, située à Sanjuhassha-cho, ville de Fukui, préfecture de Fukui, est une substantielle maison en bois de 10DK, offrant un vaste espace de vie. Elle bénéficie d'une surface de bâtiment importante de 313,58 mètres carrés, complétée par une superficie de terrain étendue de 758,00 mètres...
Caractéristiques
ANNÉE DE CONSTRUCTION
1932
🔴
Pre-1981 seismic standard
Chambres
10
STRUCTURE
木造
SURFACE HABITABLE
313.58 m²
SURFACE DU TERRAIN
758 m²
RÉGIME FONCIER
Propriété pleine
ZONAGE
Résidentiel
ÉTAGE
—
PARKING
—
POTENTIEL MINPAKU
Incertain
Gare la plus proche
Aéroport
Onsen / Source chaude
Supermarché
Épicerie de proximité
Hôpital / Clinique
Plan

Source :Voir l'annonce d'origine
Chargement...
20 vues
Disponible
...
