





Disponible
Propriété immobilière Echizen-cho Préfecture de Fukui
Chargement...
Total estimé (frais inclus): $20,579
8 vues
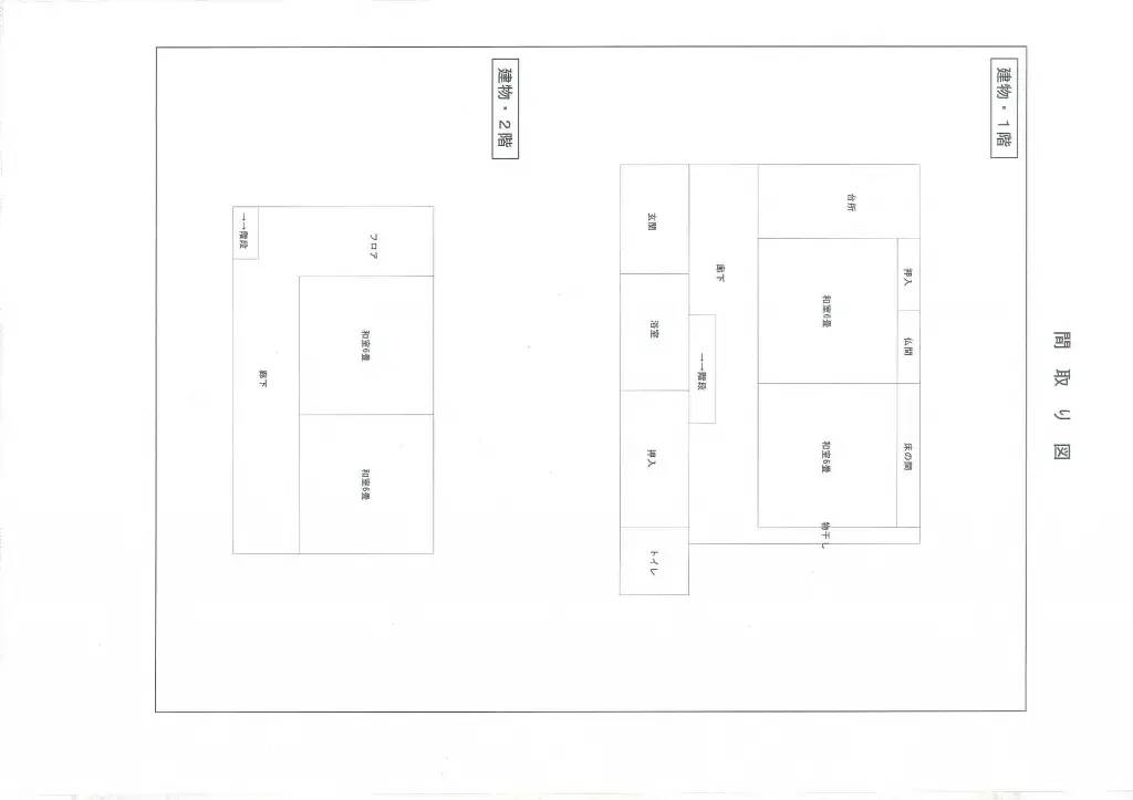
Cette propriété en bois est située à Kuri, Echizen-cho, Nyu-gun, préfecture de Fukui. Elle présente une emprise au sol de 87,16 mètres carrés et une superficie généreuse de 66,11 mètres carrés, idéale pour une maison individuelle. Bien que l'année exacte de construction soit inconnue, la propriété e...
Caractéristiques
ANNÉE DE CONSTRUCTION
Unknown
Chambres
-
STRUCTURE
木造
SURFACE HABITABLE
87.16 m²
SURFACE DU TERRAIN
66.11 m²
RÉGIME FONCIER
Propriété pleine
ZONAGE
Résidentiel
ÉTAGE
2
PARKING
—
POTENTIEL MINPAKU
Incertain
Gare la plus proche
Aéroport
Onsen / Source chaude
Supermarché
Épicerie de proximité
Hôpital / Clinique
Plan

Source :Voir l'annonce d'origine
Chargement...
Total estimé (frais inclus): $20,579
8 vues
Disponible
...
