









Disponible
Maison individuelle Ville de Sakai Préfecture de Fukui
Chargement...
Total estimé (frais inclus): $24,056
9 vues
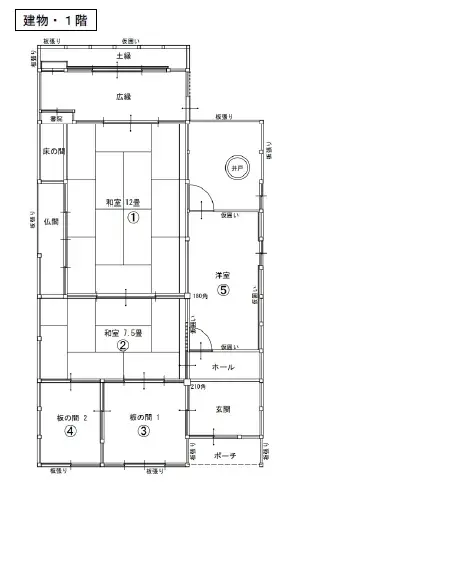
Cette maison unifamiliale en bois bien établie, construite à l'origine en 1900, présente une opportunité unique dans la préfecture de Fukui. La propriété bénéficie d'une surface de bâtiment substantielle de 85,90 mètres carrés, située sur un terrain généreux de 233,36 mètres carrés. Cette superficie...
Caractéristiques
ANNÉE DE CONSTRUCTION
1900
🔴
Pre-1981 seismic standard
Chambres
-
STRUCTURE
木造
SURFACE HABITABLE
85.9 m²
SURFACE DU TERRAIN
233.36 m²
RÉGIME FONCIER
Propriété pleine
ZONAGE
Résidentiel
ÉTAGE
1
PARKING
—
POTENTIEL MINPAKU
Peu favorable
Gare la plus proche
Aéroport
Onsen / Source chaude
Supermarché
Épicerie de proximité
Hôpital / Clinique
Plan

Source :Voir l'annonce d'origine
Chargement...
Total estimé (frais inclus): $24,056
9 vues
Disponible
...
