


Disponible
Préfecture de Toyama Ville de Tateyama Propriété
Chargement...
Total estimé (frais inclus): $76,701
4 vues
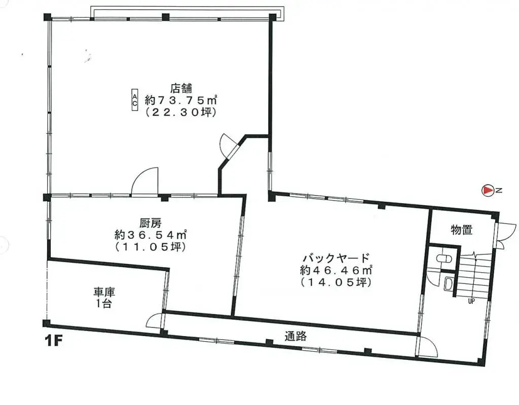
Cette propriété, construite en 1982 avec une structure durable à ossature métallique, est idéalement située à Miyaji, dans la ville de Tateyama, au sein du pittoresque district de Naka-Niikawa, dans la préfecture de Toyama. Elle offre une superficie de terrain substantielle et polyvalente de 667,28...
Caractéristiques
ANNÉE DE CONSTRUCTION
1982
Chambres
-
STRUCTURE
鉄骨
SURFACE HABITABLE
-
SURFACE DU TERRAIN
667.28 m²
RÉGIME FONCIER
Propriété pleine
ZONAGE
Résidentiel
ÉTAGE
2
PARKING
—
POTENTIEL MINPAKU
Incertain
Gare la plus proche
Aéroport
Onsen / Source chaude
Supermarché
Épicerie de proximité
Hôpital / Clinique
Plan

Source :Voir l'annonce d'origine
Chargement...
Total estimé (frais inclus): $76,701
4 vues
Disponible
...
