Disponible
9DK Propriété Ville de Nagaoka Préfecture de Niigata
Chargement...
Total estimé (frais inclus): $22,665
1 vue
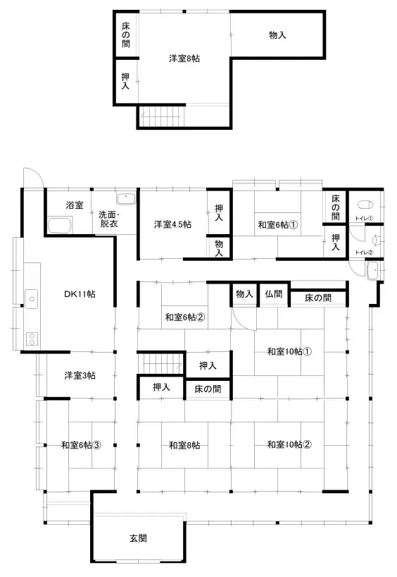
Cette maison en bois de 9DK est située à Teradomari-gouhon, dans la ville de Nagaoka, préfecture de Niigata. Elle couvre une superficie de 172,55 mètres carrés sur un terrain de 211,57 mètres carrés. Construite en 1961, la propriété offre une disposition substantielle adaptée à une grande famille ou...
Caractéristiques
ANNÉE DE CONSTRUCTION
1961
🔴
Pre-1981 seismic standard
Chambres
9
STRUCTURE
木造
SURFACE HABITABLE
172.55 m²
SURFACE DU TERRAIN
211.57 m²
RÉGIME FONCIER
Propriété pleine
ZONAGE
Résidentiel
ÉTAGE
1
PARKING
—
POTENTIEL MINPAKU
Incertain
Gare la plus proche
Aéroport
Onsen / Source chaude
Supermarché
Épicerie de proximité
Hôpital / Clinique
Plan

Source :Voir l'annonce d'origine
Chargement...
Total estimé (frais inclus): $22,665
1 vue
Disponible
...
