








Disponible
3DK Propriété Ville de Joetsu Préfecture de Niigata
Chargement...
Total estimé (frais inclus): $27,185
40 vues
2 favoris
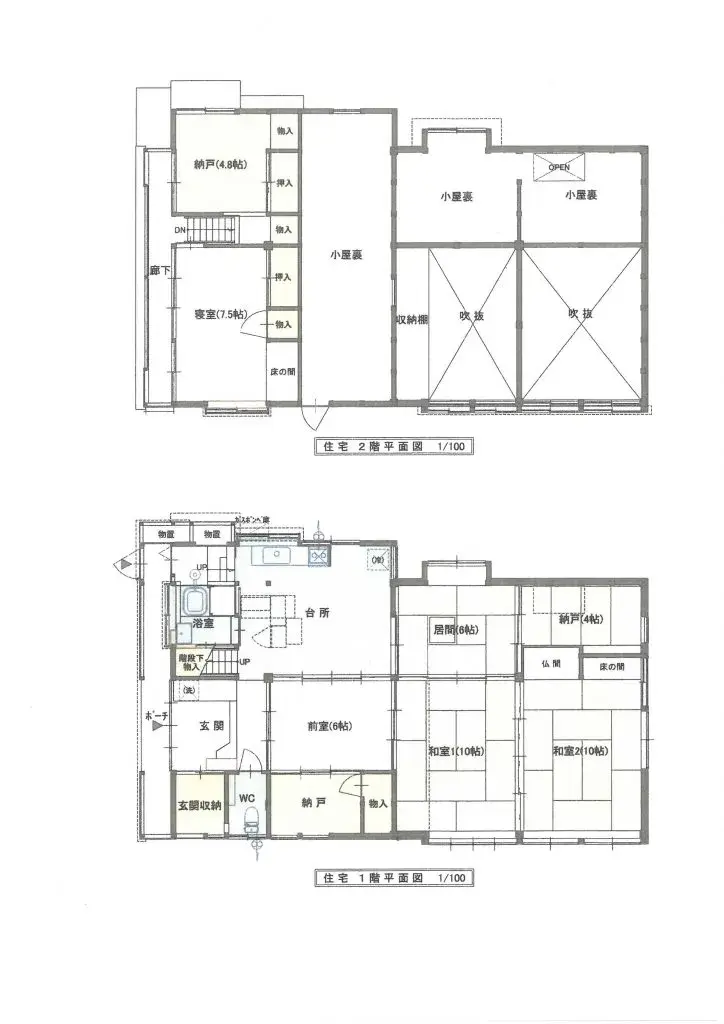
Cette propriété de 3DK est située à Takazawa, Yasuzuka-ku, dans la ville de Joetsu, préfecture de Niigata, offrant une base solide pour une résidence confortable. La maison est de construction en bois, courante dans la région, et offre une surface totale substantielle de 154,49 mètres carrés. Elle d...
Caractéristiques
ANNÉE DE CONSTRUCTION
Unknown
Chambres
3
STRUCTURE
木造
SURFACE HABITABLE
154.49 m²
SURFACE DU TERRAIN
0 m²
RÉGIME FONCIER
Propriété pleine
ZONAGE
Résidentiel
ÉTAGE
2
PARKING
—
POTENTIEL MINPAKU
Incertain
Gare la plus proche
Aéroport
Onsen / Source chaude
Supermarché
Épicerie de proximité
Hôpital / Clinique
Plan

Source :Voir l'annonce d'origine
Chargement...
Total estimé (frais inclus): $27,185
40 vues
2 favoris
Disponible
...
