







Disponible
7LDK Propriété Ville de Joetsu Préfecture de Niigata
Chargement...
Total estimé (frais inclus): $17,102
22 vues
1 favori
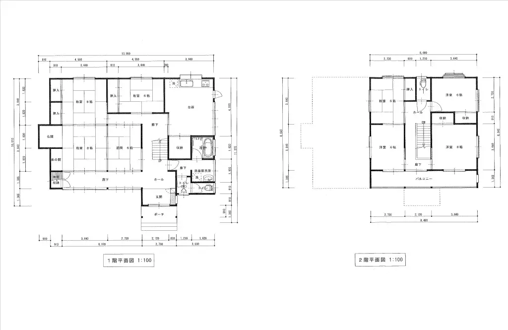
Cette maison en bois de 7LDK, construite en 1995, bénéficie d'une superficie substantielle de 192,89 mètres carrés, offrant amplement d'espace pour diverses configurations de vie. Située dans la ville de Joetsu, préfecture de Niigata, l'agencement généreux de cette propriété est exceptionnellement b...
Caractéristiques
ANNÉE DE CONSTRUCTION
1995
Chambres
7
STRUCTURE
木造
SURFACE HABITABLE
192.89 m²
SURFACE DU TERRAIN
0 m²
RÉGIME FONCIER
Propriété pleine
ZONAGE
Résidentiel
ÉTAGE
2
PARKING
—
POTENTIEL MINPAKU
Incertain
Gare la plus proche
Aéroport
Onsen / Source chaude
Supermarché
Épicerie de proximité
Hôpital / Clinique
Plan

Source :Voir l'annonce d'origine
Chargement...
Total estimé (frais inclus): $17,102
22 vues
1 favori
Disponible
...
