

Disponible
Préfecture d'Iwate Ville de Morioka 7LDK Propriété
Chargement...
Total estimé (frais inclus): $116,518
5 vues
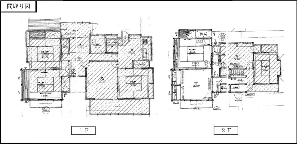
Cette propriété, située à Matsuzono 1-chome, ville de Morioka, préfecture d'Iwate, offre une spacieuse configuration 7LDK adaptée à une grande famille. Construite en 1978, cette maison en bois dispose d'un terrain généreux de 491,73 m² et d'une surface habitable de 190,63 m², offrant un espace de vi...
Caractéristiques
ANNÉE DE CONSTRUCTION
1978
🔴
Pre-1981 seismic standard
Chambres
7
STRUCTURE
木造
SURFACE HABITABLE
190.63 m²
SURFACE DU TERRAIN
491.73 m²
RÉGIME FONCIER
Propriété pleine
ZONAGE
Résidentiel
ÉTAGE
2
PARKING
—
POTENTIEL MINPAKU
Incertain
Gare la plus proche
Aéroport
Onsen / Source chaude
Supermarché
Épicerie de proximité
Hôpital / Clinique
Plan

Source :Voir l'annonce d'origine
Chargement...
Total estimé (frais inclus): $116,518
5 vues
Disponible
...
