



























Disponible
5K Propriété Takko Ville Préfecture d'Aomori
Chargement...
Total estimé (frais inclus): $10,137
18 vues
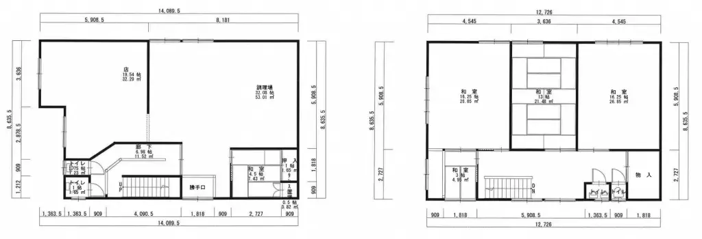
Cette maison individuelle de 5K est idéalement située à Takko Town, dans la région de Sannohe-gun, préfecture d'Aomori. Construite en 1971, cette propriété traditionnelle japonaise à ossature bois s'étend sur une superficie totale substantielle de 102,03 mètres carrés, située sur un terrain généreux...
Caractéristiques
ANNÉE DE CONSTRUCTION
1971
🔴
Pre-1981 seismic standard
Chambres
5
STRUCTURE
木造
SURFACE HABITABLE
102.03 m²
SURFACE DU TERRAIN
142.14 m²
RÉGIME FONCIER
Propriété pleine
ZONAGE
Résidentiel
ÉTAGE
2
PARKING
—
POTENTIEL MINPAKU
Incertain
Gare la plus proche
Aéroport
Onsen / Source chaude
Supermarché
Épicerie de proximité
Hôpital / Clinique
Plan

Source :Voir l'annonce d'origine
Chargement...
Total estimé (frais inclus): $10,137
18 vues
Disponible
...
