

有
长崎县平户市5DK房产
加载中...
预计总费用(含手续费): $34,485
11 次浏览
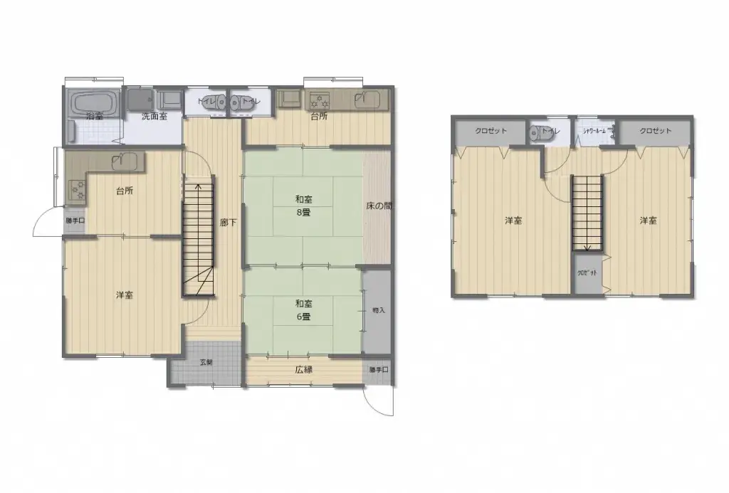
本房产位于长崎县平户市野子町,是一栋建于2003年的木造5DK住宅。建筑面积为140.90平方米,土地面积为376.00平方米,宽敞的占地是其特色。 室内为5DK格局,配备1间浴室。建于2003年,结构相对较新,广阔的土地可用于多种用途。设计充分考虑了生活的便利性。
房产详情
建造年份
2003
卧室
5
建筑材料
木造
建筑面积
140.9 平方米
土地面积
376 平方米
土地所有权
永久产权
用地性质
住宅区
楼层
—
停车位
—
短租可行性
待定
最近车站
机场
温泉
超市
便利店
医院/诊所
户型图

来源:查看原始链接
加载中...
预计总费用(含手续费): $34,485
11 次浏览
有
...
