









有
6DK 爱媛县西条市
加载中...
预计总费用(含手续费): $75,232
1 次浏览
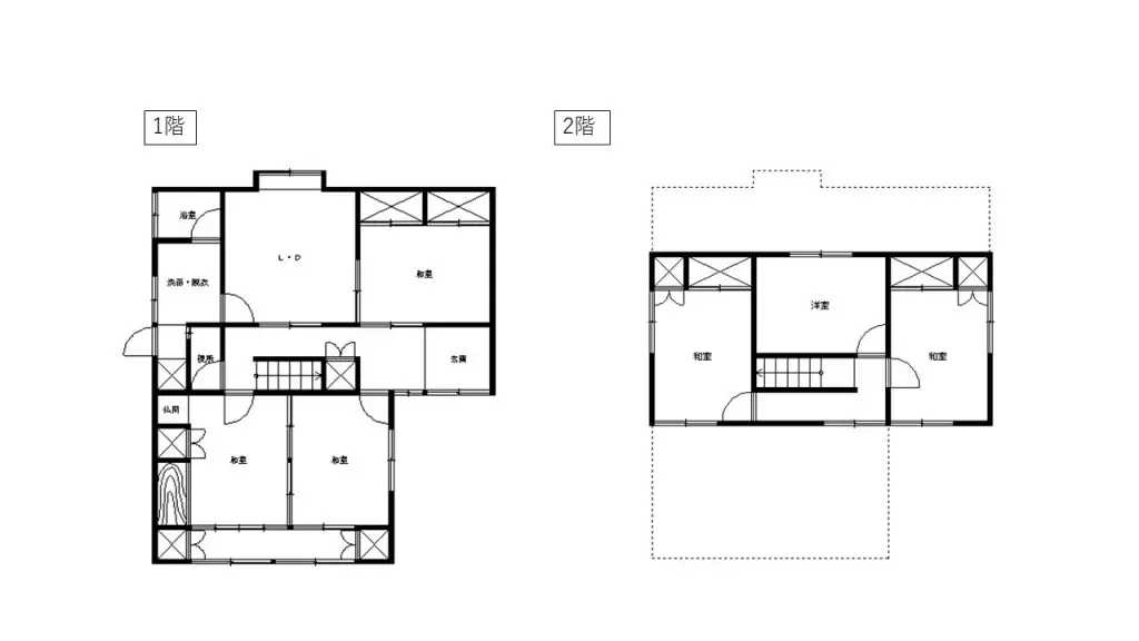
该房产位于爱媛县西条市饭冈,是一栋木造的6DK住宅。总建筑面积为132.24平方米,占地面积为288.44平方米,提供了宽敞的空间。其多样的户型设计能够满足各种生活方式,是其魅力所在。 建筑年份不明,但配备了1间浴室,日常生活所需的设施齐全。该区域被指定为田园居住区,其特点是宁静祥和的居住环境。推荐给正在寻找自然丰富之地生活的人士。
房产详情
建造年份
Unknown
卧室
6
建筑材料
木造
建筑面积
132.24 平方米
土地面积
288.44 平方米
土地所有权
永久产权
用地性质
住宅区
楼层
2
停车位
—
短租可行性
待定
最近车站
机场
温泉
超市
便利店
医院/诊所
户型图

来源:查看原始链接
加载中...
预计总费用(含手续费): $75,232
1 次浏览
有
...
