

















有
5DK房产 东广岛市 广岛县
加载中...
预计总费用(含手续费): $41,459
1 次浏览
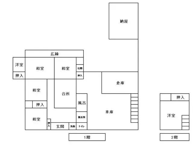
该房产位于广岛县东广岛市丰荣町安宿,是一栋5DK的木造住宅。建于1969年,但拥有宽敞的建筑面积165.64平方米和占地面积361.0平方米,为您提供宽裕的生活空间。 除了作为住宅使用外,通过翻新还可以创造新的价值。这是一个宁静的居住环境,同时也是一个适合长期居住的房产。
房产详情
建造年份
1969
🔴
Pre-1981 seismic standard
卧室
5
建筑材料
木造
建筑面积
165.64 平方米
土地面积
361 平方米
土地所有权
永久产权
用地性质
住宅区
楼层
2
停车位
—
短租可行性
较难
最近车站
机场
温泉
超市
便利店
医院/诊所
户型图

来源:查看原始链接
加载中...
预计总费用(含手续费): $41,459
1 次浏览
有
...
