




有
4DK 冈山县美咲町房产
加载中...
预计总费用(含手续费): $33,095
3 次浏览
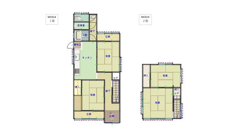
位于冈山县久米郡美咲町原田,这是一栋木造两层楼的4DK房产。总建筑面积为103.93平方米,占地面积为109.0平方米,空间宽敞。建于1978年,结构坚固,非常适合作为翻新改造的基础。 周边是宁静的住宅区,宁静的生活环境极具吸引力。日常生活所需的设施也考虑在内,是适合居住的稳定地段。请抓住这个机会进行考虑。
房产详情
建造年份
1978
🔴
Pre-1981 seismic standard
卧室
4
建筑材料
木造
建筑面积
103.93 平方米
土地面积
109 平方米
土地所有权
永久产权
用地性质
住宅区
楼层
2
停车位
—
短租可行性
待定
最近车站
机场
温泉
超市
便利店
医院/诊所
户型图

来源:查看原始链接
加载中...
预计总费用(含手续费): $33,095
3 次浏览
有
...
