


















有
6DK 可児市 岐阜县房产
加载中...
预计总费用(含手续费): $195,078
5 次浏览
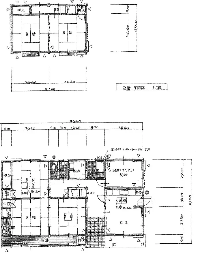
本物件位于岐阜县可儿市广眺丘2丁目,是一栋拥有6DK格局的木造住宅。建筑面积为139.94平方米,占地面积为462.51平方米,建于1978年。该区域被指定为第一类低层居住专用区,确保了宁静安逸的居住环境。 周边是宁静的住宅区,生活必需的便利设施交通便利。与主要道路的连接也很顺畅,方便日常出行。这是一处从长远居住角度来看,兼具实用性和居住环境平衡的房产。
房产详情
建造年份
1978
🔴
Pre-1981 seismic standard
卧室
6
建筑材料
木造
建筑面积
139.94 平方米
土地面积
462.51 平方米
土地所有权
永久产权
用地性质
住宅区
楼层
2
停车位
—
短租可行性
待定
最近车站
机场
温泉
超市
便利店
医院/诊所
户型图

来源:查看原始链接
加载中...
预计总费用(含手续费): $195,078
5 次浏览
有
...
