
















Available
3DK Toyama Prefecture Imizu City Property
Loading...
Est. Total (incl. fees): $8,051
10 views
1 favorite
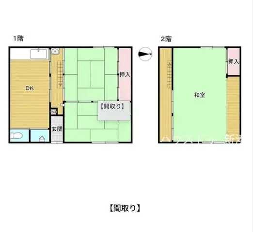
This 3DK property is located in Ninomaru-cho, Imizu City, Toyama Prefecture. It features a building footage of 56.47 square meters situated on a generous lot of 60.5 square meters. Constructed in 1968 using traditional wooden materials, the property includes one well-appointed bathroom. While reflec...
Property details
YEAR BUILT
1968
🔴
Pre-1981 seismic standard
Bedrooms
3
BUILDING MATERIAL
Wooden
BUILDING SIZE
56.47 sqm
LOT SIZE
60.5 sqm
LAND OWNERSHIP
Freehold
ZONING
Industrial
FLOOR
2
PARKING SPACE
—
MINPAKU LIKELIHOOD
Unsure
Nearest station
Airport
Onsen
Supermarket
Conveni
Hospital / Clinic
Floorplan

Source:View original listing
Loading...
Est. Total (incl. fees): $8,051
10 views
1 favorite
Available
...
