












Sold Out
4LDK Ino-cho Kochi Prefecture
Loading...
Est. Total (incl. fees): $240,994
This newly constructed 4LDK residence, completed in 2024, is situated in Edegawa, Ino-cho, Agawa-gun, Kochi Prefecture. The property features a robust wooden structure and is designed to meet stringent architectural standards, including insulation performance equivalent to Grade 5. This level of ins...
Property details
YEAR BUILT
2024
Bedrooms
4
BUILDING MATERIAL
Wooden
BUILDING SIZE
108.35 sqm
LOT SIZE
146.01 sqm
LAND OWNERSHIP
Freehold
ZONING
Residential
FLOOR
2
PARKING SPACE
Available
MINPAKU LIKELIHOOD
Unsure
Nearest station
Airport
Onsen
Supermarket
Conveni
Hospital / Clinic
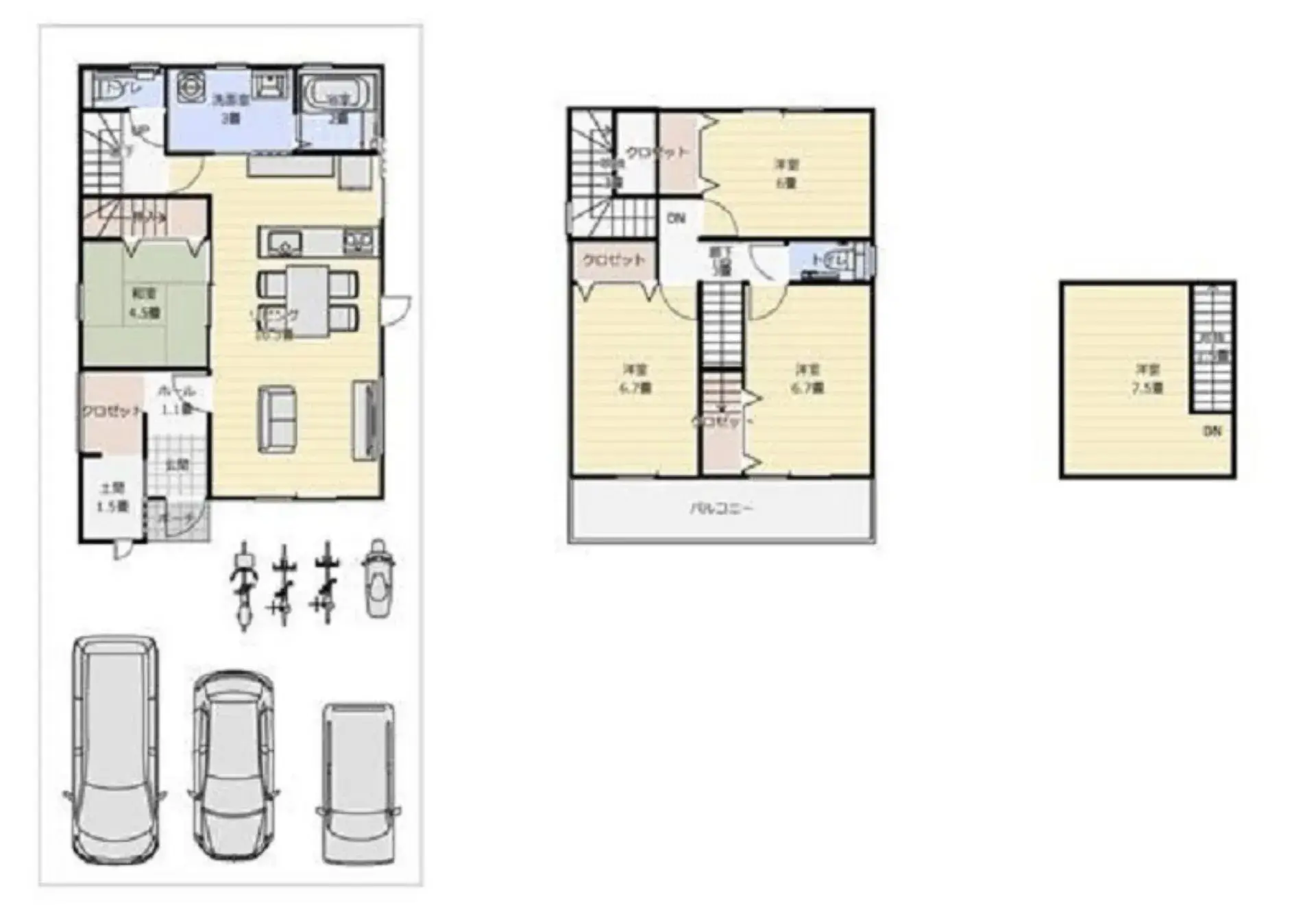
Floorplan

Investment calculator
Estimate rental yield, mortgage repayments and break-even timeline. Sign in to unlock.
Loading...
Est. Total (incl. fees): $240,994
Sold Out
...
