











Available
3LDK Property Osaka City Osaka Prefecture
Loading...
Est. Total (incl. fees): $505,862
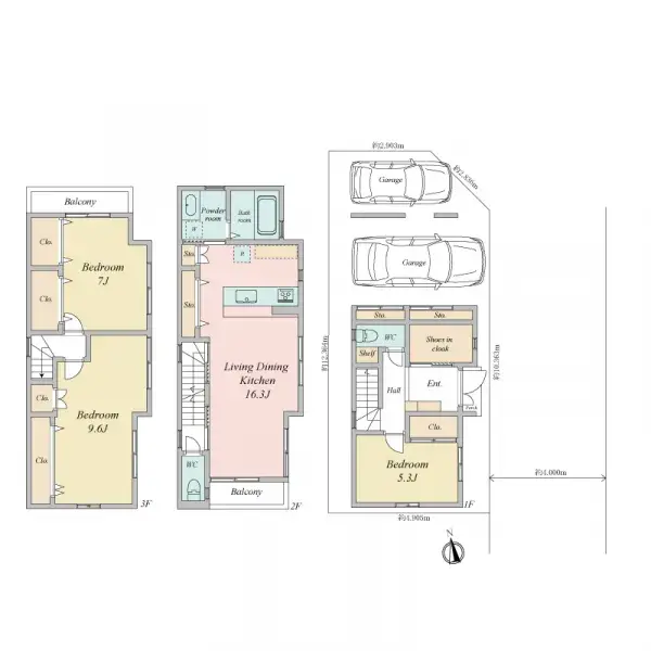
This property, constructed in 2012 with a wooden structure, is situated at Harimacho 1-chome, Abeno-ku, Osaka City, Osaka Prefecture. It offers a functional 3LDK layout, encompassing a total floor area of 102.8 square meters on a 65.43 square meter lot. The residence is equipped with one bathroom. L...
Property details
YEAR BUILT
2012
Bedrooms
3
BUILDING MATERIAL
Wooden
BUILDING SIZE
102.8 sqm
LOT SIZE
65.43 sqm
LAND OWNERSHIP
Freehold
ZONING
Residential
FLOOR
3
PARKING SPACE
Available
MINPAKU LIKELIHOOD
Likely
Nearest station
Airport
Onsen
Supermarket
Conveni
Hospital / Clinic
Floorplan

Investment calculator
Estimate rental yield, mortgage repayments and break-even timeline. Sign in to unlock.
Loading...
Est. Total (incl. fees): $505,862
Available
...
