





4LDK Osaka City Osaka
Loading...
Est. Total (incl. fees): $276,148
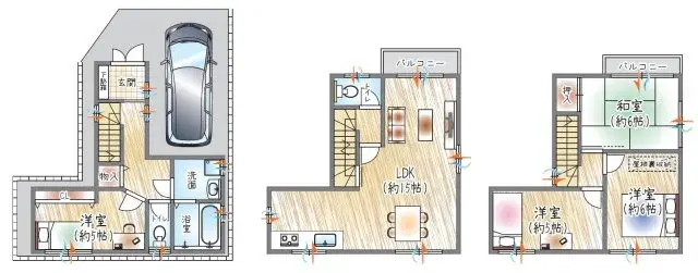
This 4LDK residence, built in 1997, features a robust steel-frame three-story construction. It offers a total building footage of 91.97 square meters on a compact yet efficient lot of 51.8 square meters. The property benefits from its strategic location, being just a 5-minute walk from Mikuni Statio...
Property details
YEAR BUILT
1997
Bedrooms
4
BUILDING MATERIAL
Steel frame construction
BUILDING SIZE
91.97 sqm
LOT SIZE
51.8 sqm
LAND OWNERSHIP
Freehold
ZONING
Residential
FLOOR
3
PARKING SPACE
Available
MINPAKU LIKELIHOOD
Unlikely
Nearest station
Airport
Onsen
Supermarket
Conveni
Hospital / Clinic
Floorplan

Investment calculator
Estimate rental yield, mortgage repayments and break-even timeline. Sign in to unlock.
Loading...
Est. Total (incl. fees): $276,148
