





[1SLDK Property] Takatsuki City Osaka Prefecture
Loading...
Est. Total (incl. fees): $212,870
1 view
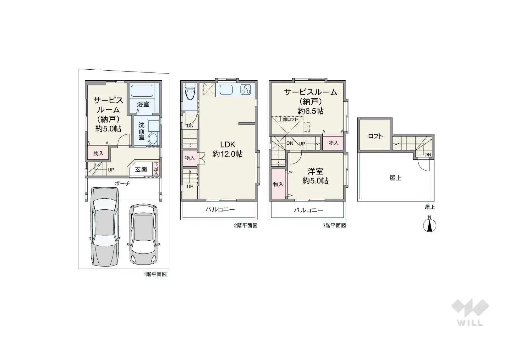
This wooden house, constructed in 2013, is located in Takatsuki City, Osaka Prefecture. The property features a 1SLDK layout, which includes one main bedroom, a living room, a dining area, a kitchen, and a service room (S), often utilized as a study or storage space. The building has a footprint of...
Property details
YEAR BUILT
2013
Bedrooms
1
BUILDING MATERIAL
Wooden
BUILDING SIZE
75.6 sqm
LOT SIZE
52.86 sqm
LAND OWNERSHIP
Freehold
ZONING
Residential
FLOOR
3
PARKING SPACE
Available
MINPAKU LIKELIHOOD
Unsure
What's nearby
Nearest station
Airport
Onsen / Hot spring
Supermarket
Hospital / Clinic
Convenience store
Investment calculator
Estimate rental yield, mortgage repayments and break-even timeline. Sign in to unlock.
Floorplan

Loading...
Est. Total (incl. fees): $212,870
1 view
