




























7R Property Ayabe City Kyoto Prefecture
Loading...
Est. Total (incl. fees): $41,300
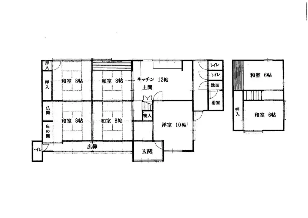
This 1975-built wooden house is situated in Shiga-gocho, Ayabe City, Kyoto Prefecture. It features a spacious 7-room layout, ideal for a large family or versatile use. The property boasts a building footprint of 87.27 square meters on an expansive lot measuring 494.98 square meters. This substantial...
Property details
YEAR BUILT
1975
🔴
Pre-1981 seismic standard
Bedrooms
7
BUILDING MATERIAL
Wooden
BUILDING SIZE
87.27 sqm
LOT SIZE
494.98 sqm
LAND OWNERSHIP
Freehold
ZONING
Residential
FLOOR
2
PARKING SPACE
Available
MINPAKU LIKELIHOOD
Unsure
What's nearby
Nearest station
Airport
Onsen / Hot spring
Supermarket
Hospital / Clinic
Convenience store
Investment calculator
Estimate rental yield, mortgage repayments and break-even timeline. Sign in to unlock.
Floorplan

Loading...
Est. Total (incl. fees): $41,300
