

























2SLDK Property, Funai-gun Kyotamba-cho, Kyoto Prefecture
Loading...
Est. Total (incl. fees): $111,855
This renovated 2SLDK single-story traditional Japanese house (kominka) is situated in Awano, Kyotamba-cho, Funai-gun, Kyoto Prefecture, offering a serene rural lifestyle. Constructed in 1965, this charming wooden-framed residence rests on a substantial 412.59 square meters (approximately 124 tsubo)...
Property details
YEAR BUILT
1965
🔴
Pre-1981 seismic standard
Bedrooms
2
BUILDING MATERIAL
Wooden
BUILDING SIZE
56.33 sqm
LOT SIZE
412.59 sqm
LAND OWNERSHIP
Freehold
ZONING
Residential
FLOOR
1
PARKING SPACE
Available
MINPAKU LIKELIHOOD
Unsure
What's nearby
Nearest station
Airport
Onsen / Hot spring
Supermarket
Hospital / Clinic
Convenience store
Investment calculator
Estimate rental yield, mortgage repayments and break-even timeline. Sign in to unlock.
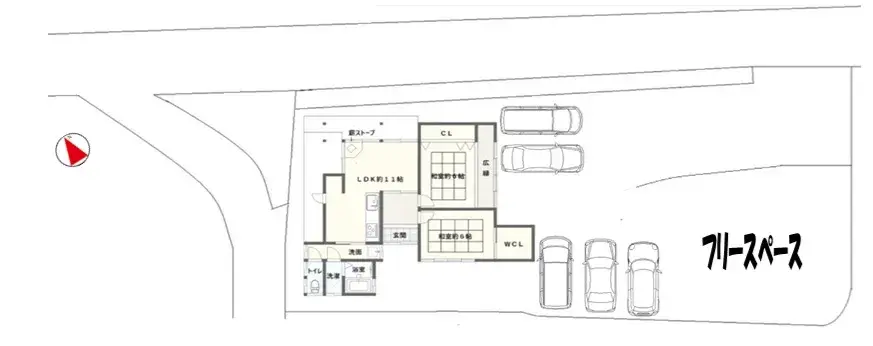
Floorplan

Loading...
Est. Total (incl. fees): $111,855
