



























6DK Property Ayabe City Kyoto Prefecture
Loading...
Est. Total (incl. fees): $33,790
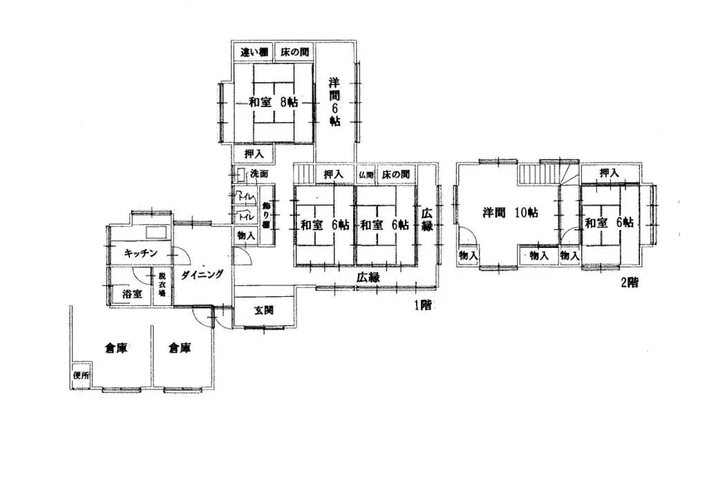
This robust 6DK wooden property, built in 1983, offers a substantial living space with a total building area of 165.87 square meters. It is set on a remarkably spacious land plot spanning 442.91 square meters, equivalent to approximately 133.98 tsubo. The property boasts a well-maintained private ga...
Property details
YEAR BUILT
1983
Bedrooms
6
BUILDING MATERIAL
Wooden
BUILDING SIZE
165.87 sqm
LOT SIZE
442.91 sqm
LAND OWNERSHIP
Freehold
ZONING
Residential
FLOOR
2
PARKING SPACE
Available
MINPAKU LIKELIHOOD
Unsure
What's nearby
Nearest station
Airport
Onsen / Hot spring
Supermarket
Hospital / Clinic
Convenience store
Investment calculator
Estimate rental yield, mortgage repayments and break-even timeline. Sign in to unlock.
Floorplan

Loading...
Est. Total (incl. fees): $33,790
