




























4SLDK Kameoka City Kyoto Prefecture
Loading...
Est. Total (incl. fees): $383,897
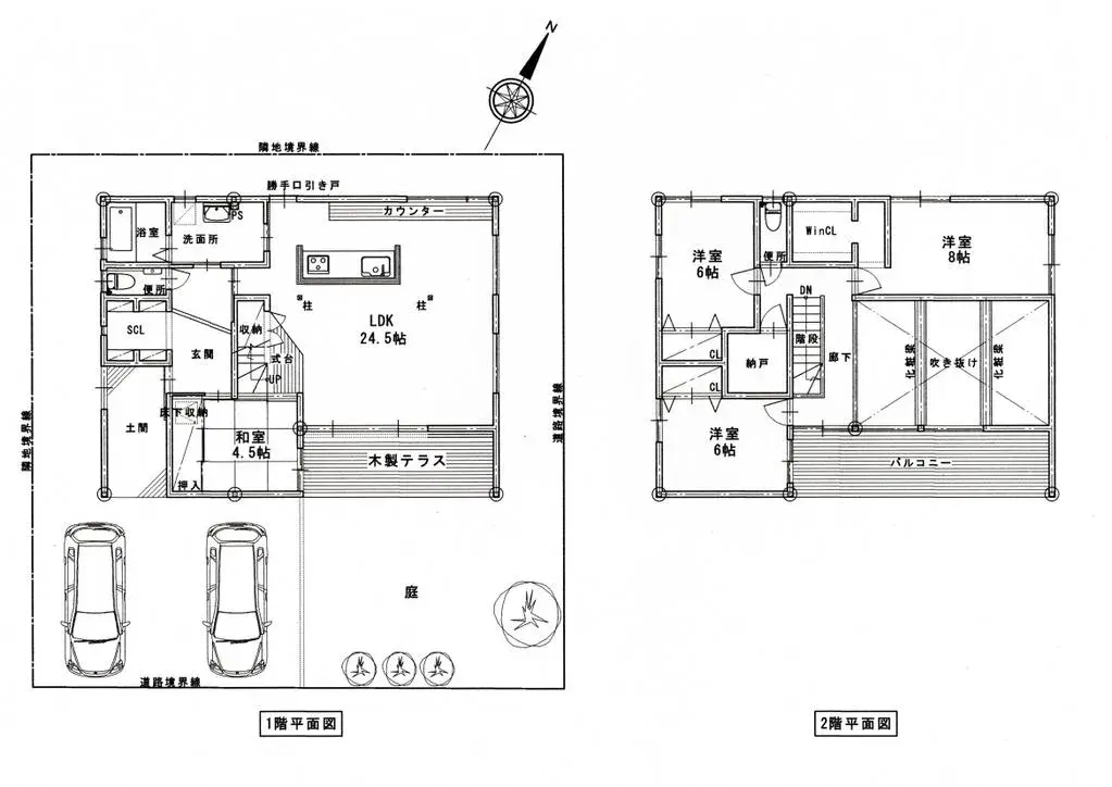
This 4SLDK detached house is located in Kameoka City, Kyoto Prefecture, offering direct access to JR Kameoka Station within an 18-minute walk, which ensures convenient commuting. The property is situated on a desirable south-east corner lot, a position that naturally maximizes exposure to sunlight t...
Property details
YEAR BUILT
2013
Bedrooms
4
BUILDING MATERIAL
Wooden
BUILDING SIZE
128.6 sqm
LOT SIZE
219.49 sqm
LAND OWNERSHIP
Freehold
ZONING
Residential
FLOOR
2
PARKING SPACE
Available
MINPAKU LIKELIHOOD
Unsure
What's nearby
Nearest station
Airport
Onsen / Hot spring
Supermarket
Hospital / Clinic
Convenience store
Investment calculator
Estimate rental yield, mortgage repayments and break-even timeline. Sign in to unlock.
Floorplan

Loading...
Est. Total (incl. fees): $383,897
