





3K Property Uji City Kyoto Prefecture
Loading...
Est. Total (incl. fees): $190,056
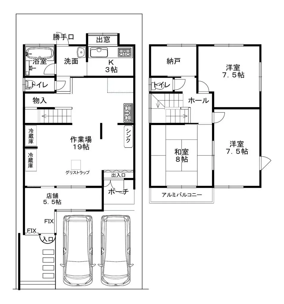
This 1997-built wooden 3K property, located in Uji City, Kyoto Prefecture, functions as a versatile store-attached residence. It features a total floor area of 112.21 square meters on a 115.96 square meter lot. The layout includes approximately 19 tatami of dedicated workspace and an additional 5.5...
Property details
YEAR BUILT
1997
Bedrooms
3
BUILDING MATERIAL
Wooden
BUILDING SIZE
112.21 sqm
LOT SIZE
115.96 sqm
LAND OWNERSHIP
Freehold
ZONING
Residential
FLOOR
2
PARKING SPACE
Available
MINPAKU LIKELIHOOD
Unlikely
What's nearby
Nearest station
Airport
Onsen / Hot spring
Supermarket
Hospital / Clinic
Convenience store
Investment calculator
Estimate rental yield, mortgage repayments and break-even timeline. Sign in to unlock.
Floorplan

Loading...
Est. Total (incl. fees): $190,056
