









3LDK Property Kyoto City Kita Ward Kyoto Prefecture
Loading...
Est. Total (incl. fees): $434,118
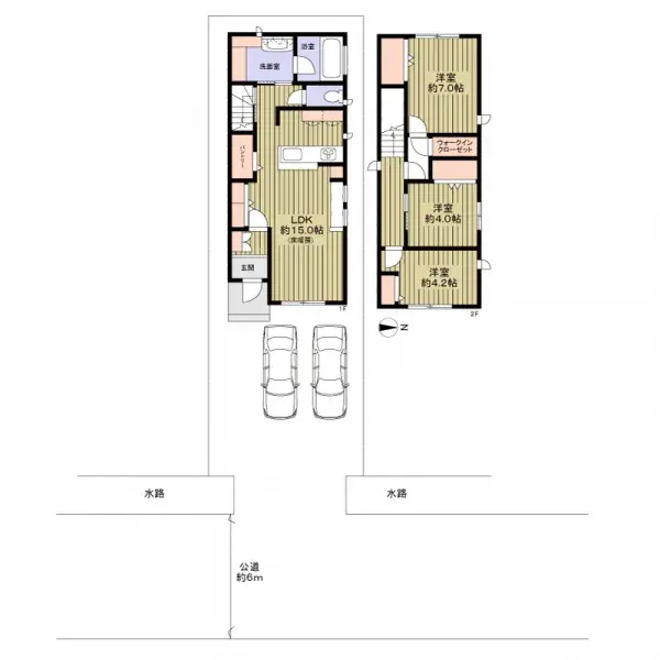
This 3LDK detached residence is situated in Nishigamo Daidochi-cho, Kita Ward, Kyoto City. Constructed in 2023 using a lightweight steel frame, the property provides 84.7 square meters of living area on a 108.13 square meter land parcel. Its modern construction ensures durability and contemporary li...
Property details
YEAR BUILT
2023
Bedrooms
3
BUILDING MATERIAL
Lightweight steel frame construction
BUILDING SIZE
84.7 sqm
LOT SIZE
108.13 sqm
LAND OWNERSHIP
Freehold
ZONING
Residential
FLOOR
2
PARKING SPACE
Available
MINPAKU LIKELIHOOD
Unsure
What's nearby
Nearest station
Airport
Onsen / Hot spring
Supermarket
Hospital / Clinic
Convenience store
Investment calculator
Estimate rental yield, mortgage repayments and break-even timeline. Sign in to unlock.
Floorplan

Loading...
Est. Total (incl. fees): $434,118
