




























Kyoto Prefecture Kyoto City 2SLDK Property
Loading...
Est. Total (incl. fees): $398,246
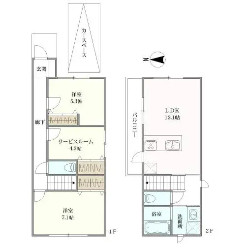
This is a newly constructed 2SLDK detached house, completed in 2024, featuring a robust wooden structure. The property offers a building footage of 73.63 square meters, providing ample interior space for daily living, complemented by a generous lot footage of 77.54 square meters. It includes one fun...
Property details
YEAR BUILT
2024
Bedrooms
2
BUILDING MATERIAL
Wooden
BUILDING SIZE
73.63 sqm
LOT SIZE
77.54 sqm
LAND OWNERSHIP
Freehold
ZONING
Residential
FLOOR
2
PARKING SPACE
Available
MINPAKU LIKELIHOOD
Unsure
What's nearby
Nearest station
Airport
Onsen / Hot spring
Supermarket
Hospital / Clinic
Convenience store
Investment calculator
Estimate rental yield, mortgage repayments and break-even timeline. Sign in to unlock.
Floorplan

Loading...
Est. Total (incl. fees): $398,246
