





Available
8DK Tahara City Aichi Prefecture
Loading...
Est. Total (incl. fees): $61,623
1 view
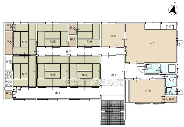
This 1994-built wooden detached house is located in Tahara City, Aichi Prefecture. It features an 8DK layout, providing a spacious total building footage of 126.45 square meters. This practical configuration includes ample rooms and communal areas, making it suitable for larger households or those c...
Property details
YEAR BUILT
1994
Bedrooms
8
BUILDING MATERIAL
Wooden
BUILDING SIZE
126.45 sqm
LOT SIZE
1005.75 sqm
LAND OWNERSHIP
Freehold
ZONING
Residential
FLOOR
1
PARKING SPACE
Available
MINPAKU LIKELIHOOD
Unsure
Nearest station
Airport
Onsen
Supermarket
Conveni
Hospital / Clinic
Floorplan

Investment calculator
Estimate rental yield, mortgage repayments and break-even timeline. Sign in to unlock.
Loading...
Est. Total (incl. fees): $61,623
1 view
Available
...
