2LDK Kanie Town Aichi Prefecture
Loading...
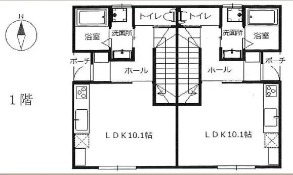
This property is a 2020-built wooden house located in Kanie Town, Ama District, Aichi Prefecture. It features a practical 2LDK layout, providing distinct living and dining areas, two bedrooms, and one bathroom, suitable for a small family or individuals. The total floor area spans 130.13 square meters, situated on a generous land area of 210.03 square meters. This construction type, a wooden structure, combined with its modern build year of 2020, ensures compliance with contemporary building codes and offers a comfortable living standard. The property is zoned as a First Type Residential Area, a designation specifically for quiet residential living, which inherently restricts the development of commercial or industrial facilities. This zoning ensures a stable and serene neighborhood environment, free from excessive noise or traffic. Practical benefits include convenient access to local infrastructure, essential for daily necessities such as shopping and public transportation routes. The property's relatively recent construction means it likely incorporates up-to-date insulation, energy efficiency, and functional design. This makes it a viable option for those seeking a contemporary home in a well-defined residential setting, prioritizing practicality and long-term stability.
Property details
YEAR BUILT
2020
Bedrooms
2
BUILDING MATERIAL
Wooden
BUILDING SIZE
130.13 sqm
LOT SIZE
210.03 sqm
LAND OWNERSHIP
Freehold
ZONING
Residential
FLOOR
2
PARKING SPACE
Available
MINPAKU LIKELIHOOD
Unlikely
Floorplan

Loading...