




Shizuoka Hamamatsu 3LDK Property
Loading...
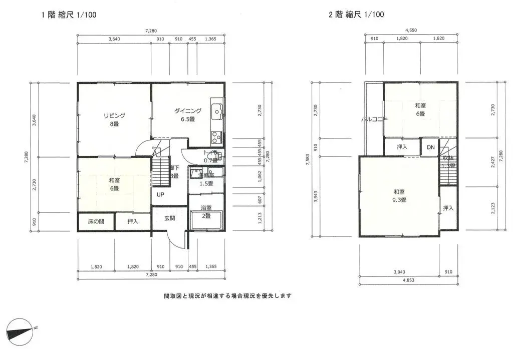
This wooden 3LDK property, constructed in 1984, is situated in Hamamatsu City, Shizuoka Prefecture. It offers a building footage of 80.4 square meters on a land area of 202.6 square meters. The property is located within a Category 1 Low-Rise Residential Zone, ensuring a serene living environment. Key characteristics include its location within the Sanaruko Scenic District, which preserves natural beauty, and compliance with local building regulations such as a 10-meter height restriction and slope ordinances. The property is under shared ownership, requiring specific confirmation of details. It is suitable for residential use, providing a tranquil home environment.
Property details
YEAR BUILT
1984
Bedrooms
3
BUILDING MATERIAL
Wooden
BUILDING SIZE
80.4 sqm
LOT SIZE
202.6 sqm
LAND OWNERSHIP
Joint
ZONING
Residential
FLOOR
2
PARKING SPACE
Available
MINPAKU LIKELIHOOD
Unlikely
Floorplan

Loading...