













6LDK Fuji City Shizuoka Prefecture Property
Loading...
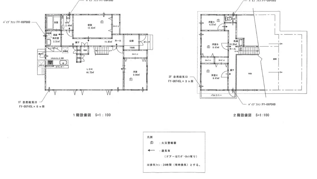
This wooden detached house, built in 2017, is situated in Harada, Fuji City, Shizuoka Prefecture. It features a spacious 6LDK layout, providing ample room for diverse living arrangements and family needs. The building spans 93.37 square meters, set upon a substantial lot measuring 542.39 square meters. Located in a First Class Low-Rise Residential Exclusive Zone, this ensures a consistently quiet, stable, and well-regulated residential environment, free from commercial or industrial intrusions. The generous land size allows for multiple outdoor applications, such as a garden, parking space, or recreational areas, ensuring a high degree of privacy and flexibility. This property is well-suited for individuals or families prioritizing a peaceful residential setting with functional indoor spaces and significant outdoor utility. Essential amenities include one dedicated bathroom, fulfilling daily living requirements effectively. The construction material is wood, a common and durable choice in Japanese housing.
Property details
YEAR BUILT
2017
Bedrooms
6
BUILDING MATERIAL
Wooden
BUILDING SIZE
93.37 sqm
LOT SIZE
542.39 sqm
LAND OWNERSHIP
Freehold
ZONING
Residential
FLOOR
2
PARKING SPACE
Available
MINPAKU LIKELIHOOD
Unsure
Floorplan

Loading...