
Available
4LDK Shimada City Shizuoka Prefecture
Loading...
Est. Total (incl. fees): $230,950
1 view
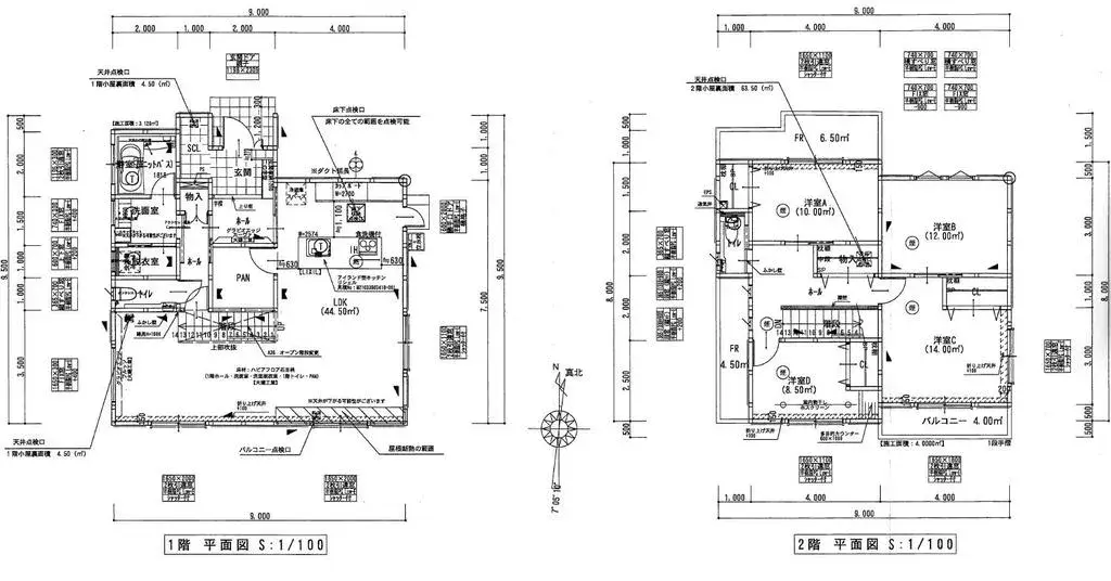
This 4LDK wooden-structure property, built in 2021, presents a modern and functional living space. The residence encompasses a building area of 138.0 square meters, situated on a spacious land plot of 268.83 square meters. Extensive interior and exterior reforms have been completed, ensuring the pro...
Property details
YEAR BUILT
2021
Bedrooms
4
BUILDING MATERIAL
Wooden
BUILDING SIZE
138 sqm
LOT SIZE
268.83 sqm
LAND OWNERSHIP
Freehold
ZONING
Residential
FLOOR
2
PARKING SPACE
Available
MINPAKU LIKELIHOOD
Unsure
Nearest station
Airport
Onsen
Supermarket
Conveni
Hospital / Clinic
Floorplan

Investment calculator
Estimate rental yield, mortgage repayments and break-even timeline. Sign in to unlock.
Loading...
Est. Total (incl. fees): $230,950
1 view
Available
...
