












4SLDK Property Gifu City Gifu Prefecture
Loading...
1 view
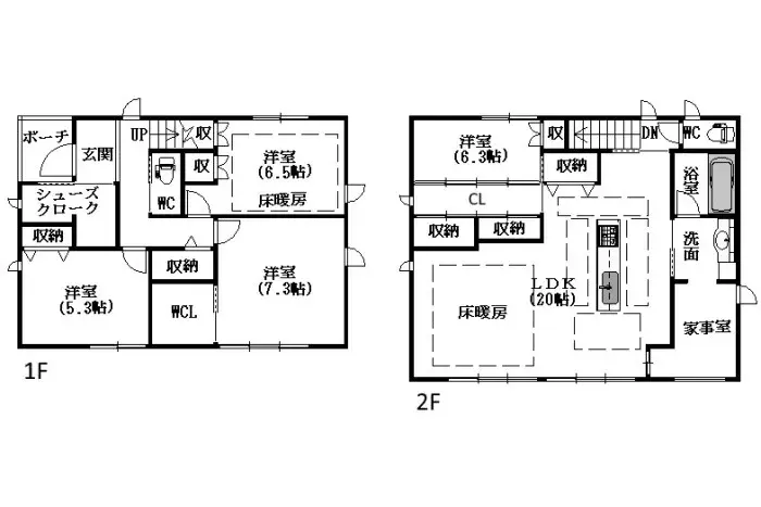
This 4SLDK detached house, constructed in 2018 with a lightweight steel frame, offers a spacious living environment. The property features a total floor area of 124.24 square meters, providing ample room, situated on a generous lot of 191.75 square meters. It includes one functional bathroom and is equipped with a 7kW solar power generation system, significantly enhancing energy efficiency and contributing to lower utility costs for residents. The modern construction ensures structural integrity and contemporary living. Located in Shimonara, Gifu City, Gifu Prefecture, the property is situated within a first-class residential zoning area, guaranteeing a quiet and peaceful neighborhood conducive to family life. The area offers convenient access to essential local amenities such as schools, retail facilities, and public transportation networks, making it highly practical for daily commutes and errands. Its recent construction means the property is in excellent condition, ready for immediate occupancy without the need for extensive renovations.
Property details
YEAR BUILT
2018
Bedrooms
4
BUILDING MATERIAL
Lightweight steel frame construction
BUILDING SIZE
124.24 sqm
LOT SIZE
191.75 sqm
LAND OWNERSHIP
Freehold
ZONING
Residential
FLOOR
2
PARKING SPACE
Available
MINPAKU LIKELIHOOD
Unsure
Floorplan

Loading...
1 view