



9DK Property Kashiwazaki City Niigata Prefecture
Loading...
2 views
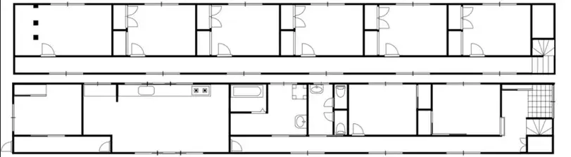
This 1980-built wooden house is prominently situated in Nishiminato-cho, Kashiwazaki City, Niigata Prefecture, presenting a substantial residential offering. The property is designed with a spacious 9DK floor plan, providing abundant living and functional areas across multiple rooms. It encompasses a considerable total building footprint of 189.9 square meters, established firmly on a generous lot measuring 173.65 square meters. The residence includes one well-appointed bathroom, ensuring all essential domestic requirements are met with practical convenience for its occupants. Positioned within a First Class Residential Zone, this location is defined by its quiet and stable environment, fostering an ideal setting for family living or long-term settlement. The property benefits significantly from its strategic access to key local roadways, facilitating efficient travel and seamless connectivity to nearby amenities and urban centers. This residence represents a robust and practical choice for individuals or families seeking a functional and sizable home within a community that values tranquility and convenient accessibility. Its substantial layout and construction details make it a reliable option.
Property details
YEAR BUILT
1980
Bedrooms
9
BUILDING MATERIAL
Wooden
BUILDING SIZE
189.9 sqm
LOT SIZE
173.65 sqm
LAND OWNERSHIP
Freehold
ZONING
Residential
FLOOR
2
PARKING SPACE
Available
MINPAKU LIKELIHOOD
Unsure
Floorplan

Loading...
2 views