











Available
4SLDK Property Yokohama City Kanagawa Prefecture
Loading...
Est. Total (incl. fees): $326,369
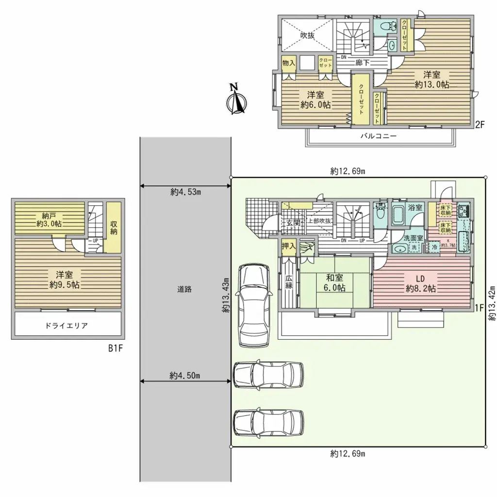
This 4SLDK wooden house, built in 1998, is situated in Hodogaya Ward, Yokohama City, Kanagawa Prefecture. It features a building footprint of 129.18 square meters on a generous lot of 170.82 square meters, offering significant living space. The property is positioned in a convenient area that provid...
Property details
YEAR BUILT
1998
Bedrooms
4
BUILDING MATERIAL
Wooden
BUILDING SIZE
129.18 sqm
LOT SIZE
170.82 sqm
LAND OWNERSHIP
Freehold
ZONING
Residential
FLOOR
2
PARKING SPACE
Available
MINPAKU LIKELIHOOD
Unsure
Nearest station
Airport
Onsen
Supermarket
Conveni
Hospital / Clinic
Floorplan

Investment calculator
Estimate rental yield, mortgage repayments and break-even timeline. Sign in to unlock.
Loading...
Est. Total (incl. fees): $326,369
Available
...
