






4LDK Property Hino City Tokyo
Loading...
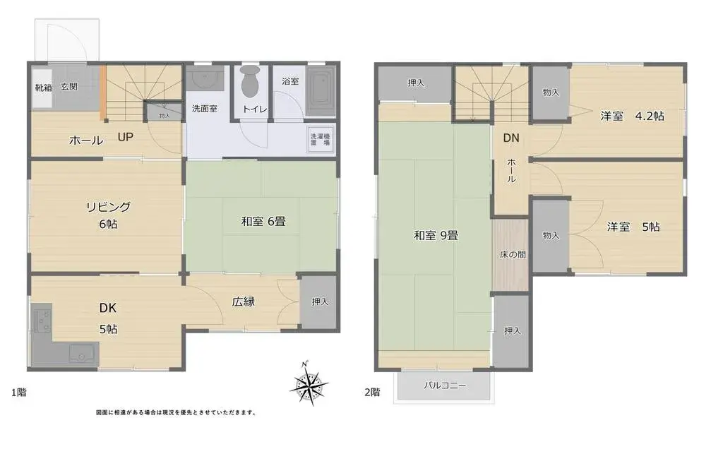
This 4LDK residence, constructed in 1977 with a lightweight steel frame, is situated in Hino City, Tokyo. The building's design features a robust, earthquake-resistant structure. With a south-facing orientation, the interior benefits from abundant natural light throughout the day, creating a bright and comfortable living space. The property comprises a building area of 73.3 square meters and is set on a substantial lot spanning 144.88 square meters, offering practical dimensions for a family residence. This property includes one bathroom. Located in a designated residential zone, the area is known for its tranquil atmosphere, providing a peaceful retreat from urban bustle. Despite its quiet setting, the property boasts convenient proximity to a variety of commercial amenities, including shopping centers and daily necessities, ensuring high living convenience. Furthermore, its specifications and location make it a viable option for a rental property, with potential for generating a stable income stream, making it a practical consideration for investors or owner-occupiers.
Property details
YEAR BUILT
1977
Bedrooms
4
BUILDING MATERIAL
Lightweight steel frame construction
BUILDING SIZE
73.3 sqm
LOT SIZE
144.88 sqm
LAND OWNERSHIP
Freehold
ZONING
Residential
FLOOR
2
PARKING SPACE
Available
MINPAKU LIKELIHOOD
Unlikely
Floorplan

Loading...