


















3LDK Property Machida City Tokyo
Loading...
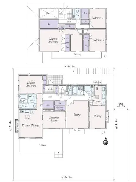
This 3LDK property, constructed in 1996, is situated in Machida City, Tokyo. The residence features a robust wooden two-story structure, encompassing a generous total floor area of 180.1 square meters. It is set on a substantial land area measuring 288.35 square meters, offering ample outdoor space. The original construction was managed by Mitsui Home, a reputable builder known for their quality residential projects, which indicates a well-maintained and reliable build. Located within a Category 1 Low-Rise Residential Zone, the property benefits from a tranquil and exclusive residential atmosphere, free from commercial distractions. Key features include a dedicated parking space equipped with an electric shutter for security and convenience. Furthermore, this house is specifically designed and configured as a two-family residence, providing flexible living arrangements for extended families or rental opportunities. The property includes one functional bathroom, meeting essential daily needs.
Property details
YEAR BUILT
1996
Bedrooms
3
BUILDING MATERIAL
Wooden
BUILDING SIZE
180.1 sqm
LOT SIZE
288.35 sqm
LAND OWNERSHIP
Freehold
ZONING
Residential
FLOOR
2
PARKING SPACE
Available
MINPAKU LIKELIHOOD
Unsure
Floorplan

Loading...