













2SLDK property Nerima Ward Tokyo
Loading...
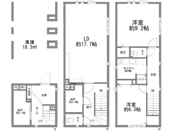
This 2SLDK detached house is situated in Toyotama-naka, Nerima Ward, Tokyo, offering highly convenient urban living. The property boasts excellent accessibility to central Tokyo, being just a 10-minute walk from Nerima Station. It is located within a First-Class Low-Rise Residential Zone, ensuring a tranquil and well-maintained living environment. Residents will find a comprehensive range of daily amenities and public services in the immediate vicinity, adding to the overall convenience of this location. Constructed in 2017, this residence features a durable lightweight steel frame structure, indicative of modern building standards. The building has a footprint of 105.42m² and is situated on a land area of 76.06m². It includes one functional bathroom. The property's recent construction and its robust structural design are notable attributes, presenting a practical and durable home suitable for long-term occupancy and providing a stable foundation for residents.
Property details
YEAR BUILT
2017
Bedrooms
2
BUILDING MATERIAL
Lightweight steel frame construction
BUILDING SIZE
105.42 sqm
LOT SIZE
76.06 sqm
LAND OWNERSHIP
Freehold
ZONING
Residential
FLOOR
3
PARKING SPACE
Available
MINPAKU LIKELIHOOD
Unlikely
Floorplan

Loading...