




























3LDK Property Hino City Tokyo
Loading...
1 view
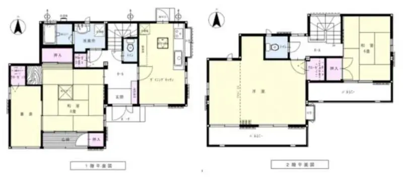
This property presents a 3LDK residence, completed in 1995, and constructed with a lightweight steel frame, offering a robust and durable structure. The building occupies 102.34 square meters on a generous 147.79 square meter lot. A key feature is the south-facing orientation of all primary rooms, ensuring an abundance of natural light throughout the day, which enhances the living environment and provides consistent warmth. This design is practical for energy efficiency and occupant comfort. The location offers significant convenience, positioned just a 9-minute walk from Hino Station on the JR Chuo Line, facilitating direct and efficient transit to central Tokyo and other key areas. This makes it highly suitable for individuals commuting for work or leisure. Additionally, the property includes a dedicated parking space, addressing transportation needs for vehicle owners. Daily amenities are readily available, with a convenience store situated merely a 5-minute walk away, providing ease for routine errands and grocery shopping.
Property details
YEAR BUILT
1995
Bedrooms
3
BUILDING MATERIAL
Lightweight steel frame construction
BUILDING SIZE
102.34 sqm
LOT SIZE
147.79 sqm
LAND OWNERSHIP
Freehold
ZONING
Residential
FLOOR
2
PARKING SPACE
Available
MINPAKU LIKELIHOOD
Unlikely
Floorplan

Loading...
1 view