Available
4SLDK Property Sakura City Chiba Prefecture
Loading...
Est. Total (incl. fees): $184,316
1 view
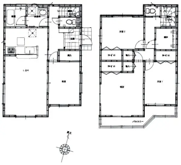
This residential property, a wooden house constructed in 2015, is situated in Sakura City, Chiba Prefecture. It offers a practical 4SLDK floor plan, providing a versatile layout suitable for various living arrangements. The total building area spans 105.3 square meters, positioned on a generous land...
Property details
YEAR BUILT
2015
Bedrooms
4
BUILDING MATERIAL
Wooden
BUILDING SIZE
105.3 sqm
LOT SIZE
228.84 sqm
LAND OWNERSHIP
Freehold
ZONING
Residential
FLOOR
2
PARKING SPACE
Available
MINPAKU LIKELIHOOD
Unsure
Nearest station
Airport
Onsen
Supermarket
Conveni
Hospital / Clinic
Floorplan

Investment calculator
Estimate rental yield, mortgage repayments and break-even timeline. Sign in to unlock.
Loading...
Est. Total (incl. fees): $184,316
1 view
Available
...
