






















[4LDK Property] Yachiyo City, Chiba Prefecture
Loading...
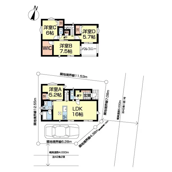
This newly constructed 4LDK wooden house, built in 2024, is located in Yachiyo City, Chiba Prefecture, offering modern living in a well-established residential area. The property features a substantial building area of 98.12 square meters and stands on a spacious lot spanning 120.01 square meters, providing ample room for a comfortable family lifestyle. This home is meticulously designed with a functional layout, including a well-appointed kitchen and distinct living and dining areas, complementing its single, efficiently designed bathroom. As a brand new construction, residents can expect contemporary finishes and infrastructure. The location offers significant convenience, being just a 10-minute walk from Yachiyo-Chuo Station, which provides direct access to major urban centers. The property is situated within a first-class residential zoning area, characterized by its tranquil atmosphere and suitability for family living. Essential services, including supermarkets, schools, and local facilities, are easily accessible, contributing to a highly practical and convenient daily life. This property combines the advantages of new construction with a desirable residential setting, making it an ideal choice for prospective homeowners.
Property details
YEAR BUILT
2024
Bedrooms
4
BUILDING MATERIAL
Wooden
BUILDING SIZE
98.12 sqm
LOT SIZE
120.01 sqm
LAND OWNERSHIP
Freehold
ZONING
Residential
FLOOR
2
PARKING SPACE
Available
MINPAKU LIKELIHOOD
Unlikely
Floorplan

Loading...