









[3SLDK Property] Asaka City, Saitama Prefecture
Loading...
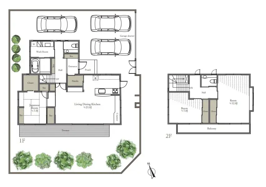
This 3SLDK wooden-structured property, constructed in 2008, offers a building area of 130.42 square meters set on a spacious lot spanning 258.56 square meters. Located in a well-established residential area of Asaka City, Saitama Prefecture, the property ensures a high degree of daily convenience. Essential facilities such as the city hall, post office, a major supermarket, local convenience stores, and a drug store are all conveniently situated within a five-minute walking radius, making daily errands effortless. The residence is uniquely positioned on a desirable southeast corner lot, which ensures a consistent influx of natural light and promotes optimal cross-ventilation throughout the living spaces. This design contributes to a bright and comfortable interior environment. Furthermore, the expansive lot size allows for substantial outdoor utility and includes dedicated parking space for up to three vehicles, a significant advantage for families or individuals requiring multiple car accommodation. The property's functional layout and modern construction from 2008 provide a practical living solution within a community-rich setting.
Property details
YEAR BUILT
2008
Bedrooms
3
BUILDING MATERIAL
Wooden
BUILDING SIZE
130.42 sqm
LOT SIZE
258.56 sqm
LAND OWNERSHIP
Freehold
ZONING
Residential
FLOOR
2
PARKING SPACE
Available
MINPAKU LIKELIHOOD
Unsure
Floorplan

Loading...