



Saitama Prefecture Kitamoto City 4LDK Property
Loading...
1 view
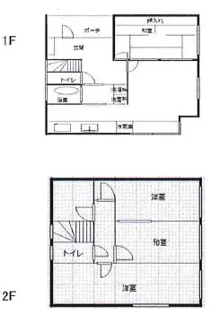
This 4LDK wooden house, built in 1990, is located in Nakaruka, Kitamoto City, Saitama Prefecture. Positioned within a Category 1 Low-Rise Residential Zone, the property provides a peaceful and comfortable living environment, highly suitable for families seeking tranquility. A key advantage of this residence is its abundant natural light, ensuring that the interiors remain bright and inviting throughout the day. The immediate surroundings consist of a quiet residential neighborhood, offering a serene atmosphere away from the busier city areas, which is highly appealing for those prioritizing calm and family life, providing a strong sense of community. The property features a practical building footage of 94.39 square meters, situated on a spacious land plot of 149.81 square meters, offering ample room both indoors and for potential outdoor arrangements such as a small garden or parking space. As a well-maintained wooden structure built in 1990, it represents a durable and established home. Its location ensures convenient access to local infrastructure and essential services, including local shops and public transportation routes, supporting a comfortable daily life. This residence offers a stable and practical living solution in a desirable residential area, balancing quietude with necessary urban connectivity, making it an excellent opportunity for prospective homeowners.
Property details
YEAR BUILT
1990
Bedrooms
4
BUILDING MATERIAL
Wooden
BUILDING SIZE
94.39 sqm
LOT SIZE
149.81 sqm
LAND OWNERSHIP
Freehold
ZONING
Residential
FLOOR
2
PARKING SPACE
Available
MINPAKU LIKELIHOOD
Unlikely
Floorplan

Loading...
1 view