















4LDK Property Ageo City Saitama Prefecture
Loading...
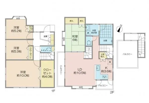
This property in Ageo City, Saitama Prefecture, is a 4LDK wooden detached house constructed in 1998. It provides a substantial building footage of 104.99 square meters on a plot measuring 110.09 square meters. The functional layout includes four bedrooms, a living room, dining area, and kitchen, with one bathroom, making it suitable for family occupancy. The wooden construction offers a durable and practical structure, maintaining its integrity and providing a comfortable living space despite its build year. Located within a designated First Type Low-Rise Residential Zone, the area ensures a quiet and stable living environment. This zoning category restricts the height and type of buildings, promoting a landscape of detached homes and maintaining optimal sunlight exposure and ventilation. The neighborhood is predominantly residential, offering a peaceful setting ideal for families seeking a secure and well-regulated community away from commercial activities, prioritizing residential comfort and calm.
Property details
YEAR BUILT
1998
Bedrooms
4
BUILDING MATERIAL
Wooden
BUILDING SIZE
104.99 sqm
LOT SIZE
110.09 sqm
LAND OWNERSHIP
Freehold
ZONING
Residential
FLOOR
2
PARKING SPACE
Available
MINPAKU LIKELIHOOD
Unsure
Floorplan

Loading...