


























4LDK Property Kawaguchi City Saitama
Loading...
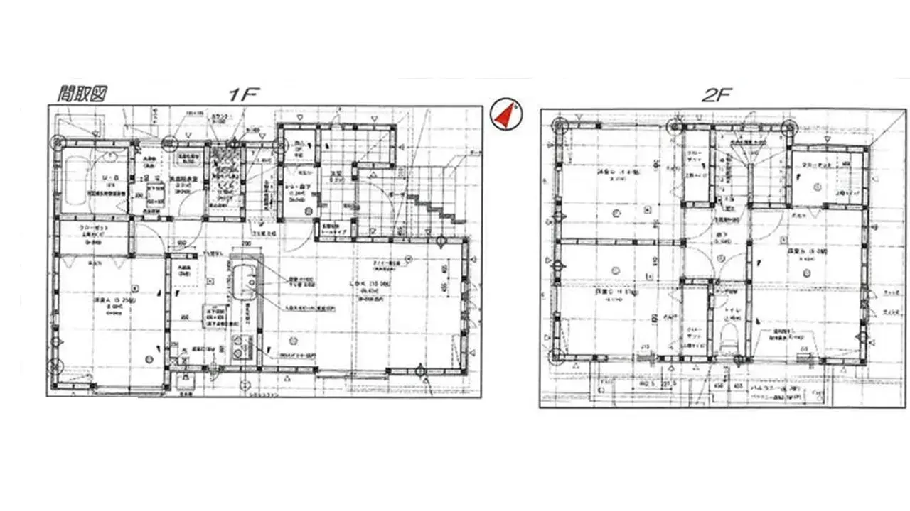
This 4LDK wooden-structured house, completed in 2017, presents a well-maintained living space with a building footage of 90.26 square meters set on a lot spanning 141.38 square meters. The property's modern construction ensures efficient and comfortable daily living, featuring a practical layout suitable for family needs. Its design prioritizes functionality and longevity, offering a reliable home within a established residential environment that promotes community and quiet. Practical amenities include the provision for parking up to two vehicles, subject to size limitations, and an integrated walk-in closet, optimizing internal storage capacity. The location offers significant advantages for families due to its close proximity to key educational facilities: Angyo Higashi Elementary School is an 8-minute walk (approximately 600 meters), and Angyo Junior High School is a 9-minute walk (approximately 700 meters). This accessibility provides convenient and safe commutes for students, complementing the peaceful neighborhood.
Property details
YEAR BUILT
2017
Bedrooms
4
BUILDING MATERIAL
Wooden
BUILDING SIZE
90.26 sqm
LOT SIZE
141.38 sqm
LAND OWNERSHIP
Freehold
ZONING
Residential
FLOOR
2
PARKING SPACE
Available
MINPAKU LIKELIHOOD
Unsure
Floorplan

Loading...