









7DK Property Ota City Gunma Prefecture
Loading...
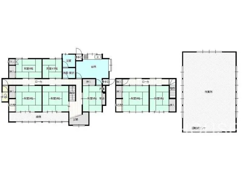
This detached wooden house, constructed in 1975, is situated in Midori-cho, Ota City, Gunma Prefecture. The residence offers a functional 7DK layout, encompassing a building footprint of 173.44 square meters. It is positioned on a substantial lot spanning 774.03 square meters, providing significant outdoor space suitable for various uses. The property includes one bathroom and benefits from a south-facing road, which ensures abundant natural light throughout the living areas, enhancing comfort. Given its age, this property presents a considerable opportunity for comprehensive renovation and modernization, allowing for the creation of a personalized living environment tailored to specific needs. The generous number of rooms and the expansive land area make it suitable for a variety of uses, including large family living or the development of dedicated spaces for work or hobbies. Its location in Ota City provides practical access to local amenities, including essential services and transportation links, contributing to everyday convenience.
Property details
YEAR BUILT
1975
Bedrooms
7
BUILDING MATERIAL
Wooden
BUILDING SIZE
173.44 sqm
LOT SIZE
774.03 sqm
LAND OWNERSHIP
Freehold
ZONING
Residential
FLOOR
2
PARKING SPACE
Available
MINPAKU LIKELIHOOD
Unsure
Floorplan

Loading...