



























4LDK Property Oyama Tochigi
Loading...
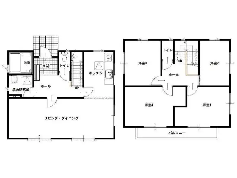
This 4LDK wooden-frame property, constructed in 2001, offers a practical layout with one bathroom, suitable for a family. The building spans a generous 104.75 square meters, positioned on a substantial land plot of 159.44 square meters. This well-maintained residence provides a comfortable and functional living environment, integrating essential modern amenities. The thoughtful design maximizes both usable space and daily convenience for its occupants. Strategically located in a tranquil residential neighborhood within Oyama City, Tochigi Prefecture, this property benefits from its advantageous northwest corner lot status. Residents will find daily life highly convenient due to the close proximity of various supermarkets, such as Belc and Torisen, catering to all essential shopping needs. Moreover, the property offers excellent connectivity to major transportation routes, including National Route 4, ensuring straightforward and efficient access for commuting, regional travel, and recreational activities, enhancing overall lifestyle quality.
Property details
YEAR BUILT
2001
Bedrooms
4
BUILDING MATERIAL
Wooden
BUILDING SIZE
104.75 sqm
LOT SIZE
159.44 sqm
LAND OWNERSHIP
Freehold
ZONING
Residential
FLOOR
2
PARKING SPACE
Available
MINPAKU LIKELIHOOD
Unsure
Floorplan

Loading...