












2SLDK Property Nasu Shiobara City Tochigi Prefecture
Loading...
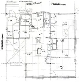
This detached house, constructed in 2020 using a lightweight steel frame, presents a functional 2SLDK layout across a total building area of 91.44 square meters. The single-floor design emphasizes a smooth flow for daily household activities, promoting efficiency and ease. All living spaces within the residence are equipped with durable flooring, a choice that significantly simplifies routine cleaning and maintenance, contributing to a comfortable and tidy living environment for occupants. This modern construction ensures a sturdy and reliable structure. The property is set on a substantial lot spanning 259.53 square meters, which includes a private garden area. This outdoor space provides opportunities for relaxation or as a secure play area for children. Practical amenities include dedicated parking for two vehicles, accommodating both residents and occasional visitors without issue. Inside, the design incorporates high ceilings that enhance the feeling of spaciousness and light throughout the home. The kitchen is fully appointed with a contemporary IH cooking heater, offering a safe and efficient solution for culinary tasks.
Property details
YEAR BUILT
2020
Bedrooms
2
BUILDING MATERIAL
Lightweight steel frame construction
BUILDING SIZE
91.44 sqm
LOT SIZE
259.53 sqm
LAND OWNERSHIP
Freehold
ZONING
Residential
FLOOR
1
PARKING SPACE
Available
MINPAKU LIKELIHOOD
Unsure
Floorplan

Loading...