



















Akita Prefecture Oga City 3LDK Property
Loading...
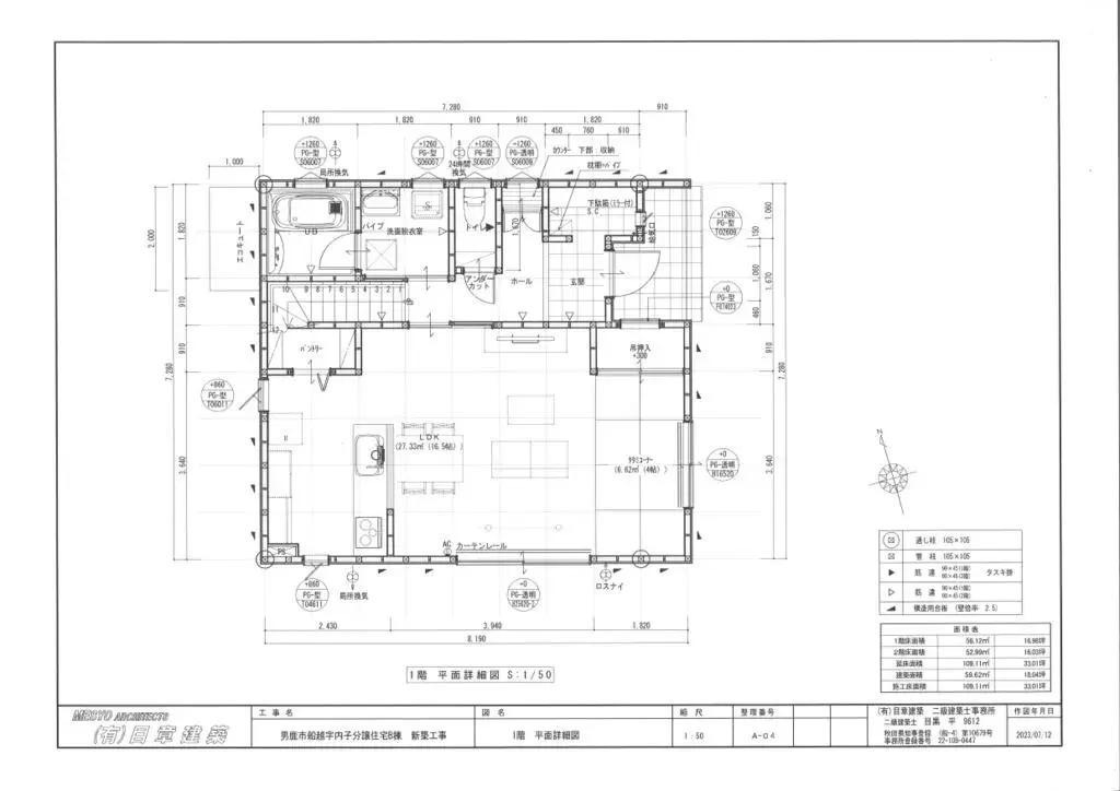
This newly constructed 3LDK wooden house is situated in Funakoshi, Oga City, Akita Prefecture, with completion in 2024. The property features a functional 3LDK layout, providing distinct living, dining, and kitchen areas along with three private rooms, suitable for a family. It boasts a total building area of 109.11 square meters on a substantial land plot of 211.65 square meters, offering ample exterior space. Construction from wood provides a robust and commonly used framework for Japanese residential structures. The residence includes one bathroom. Positioned within a designated Second Residential Zone, the location is planned for residential comfort, ensuring a consistent living environment. Convenience for daily life is a notable advantage, with Oga Namahage Mall located approximately a 10-minute walk from the property, providing access to various retail and service options. This house is also part of the Mori/Hikari Town subdivision, benefiting from established infrastructure and a coherent community layout.
Property details
YEAR BUILT
2024
Bedrooms
3
BUILDING MATERIAL
Wooden
BUILDING SIZE
109.11 sqm
LOT SIZE
211.65 sqm
LAND OWNERSHIP
Freehold
ZONING
Residential
FLOOR
2
PARKING SPACE
Available
MINPAKU LIKELIHOOD
Unsure
Floorplan

Loading...