






















3SLDK Chitose City Hokkaido
Loading...
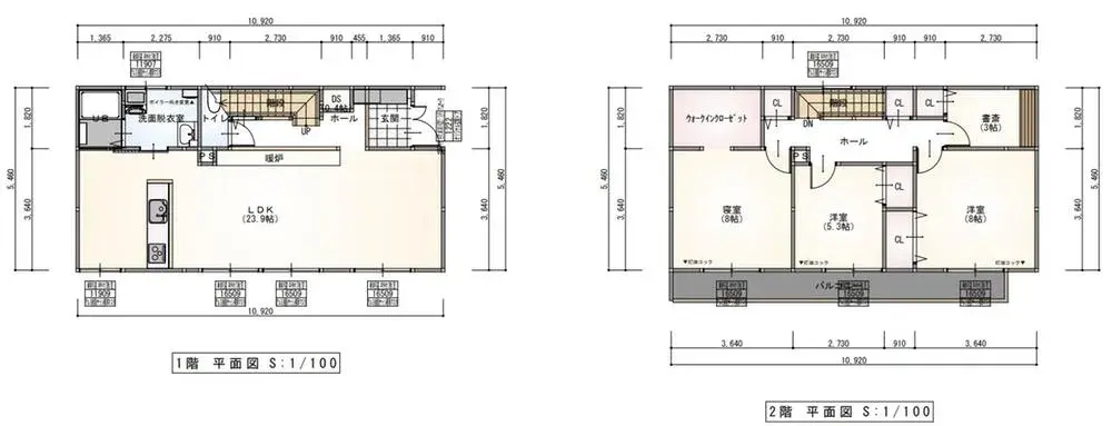
This 3SLDK wooden-structured residence, built in 1994, is situated on a 264.46 square meter lot with a building area of 116.96 square meters. The property features a practical layout optimized for comfortable living. A significant update was completed in September 2024, involving a comprehensive interior renovation to modernize various living areas and ensure contemporary standards. This renovation enhances the property's appeal and functionality for future occupants. On-site parking for one vehicle is available, adding to the convenience of the location in Chitose City. Strategically positioned on a corner lot, the house benefits from superior natural light and consistent sun exposure throughout the day, contributing to a bright and inviting interior ambiance. A notable advantage is its direct adjacency to a large public park, providing residents with immediate access to expansive green spaces for outdoor activities and a tranquil setting. This location combines the practicality of suburban living with the benefits of nearby recreational facilities. The property offers a stable and well-maintained living environment.
Property details
YEAR BUILT
1994
Bedrooms
3
BUILDING MATERIAL
Wooden
BUILDING SIZE
116.96 sqm
LOT SIZE
264.46 sqm
LAND OWNERSHIP
Freehold
ZONING
Industrial
FLOOR
2
PARKING SPACE
Available
MINPAKU LIKELIHOOD
Unlikely
Floorplan

Loading...